
设计咨询是房友综合性咨询业务中的重要一环,主要致力于设计相关咨询服务,依托房友咨询22年的项目数据积累,我们对于住宅房地产开发的产品选型、设计优化均有着丰富的经验。
设计策划优势:
1.数据库对标同类型项目,加快强排方案速度。
2.分析同类型产品与规划条件下优缺点,提高最优方案的精准度。
下面以地块强排和车库方案为例比较数据支持下分析路径和传统分析路径的优势

一、首先以近两年内1.5容积率房地产楼盘为例作为分析数据,平行对比1.5容积率的类似项目,以模拟不同类产品单平米售价,综合测算1.5容积率的强排最大收益率。


经过综合数据分析,在1.5容积率地块条件下,横向地块优于竖向地块优于不规则地块。当横向地块横竖比例为1.45,洋房占比约为70%,为测算经济占比最高。

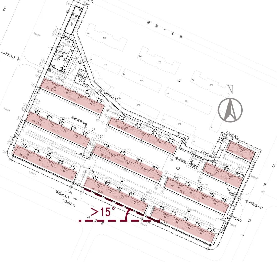
除了受到客观地块形状影响的测算收益以外,也有一些数据指标上非常好的案例,超出横向地块优于竖向地块优于不规则地块的结论。经过我们重新分析了全专业施工图后,从方案强排技术上得到了新的答案,例如:

此项目洋房布置角度大于15°,根据天津市城市规划管理规定要求,可以减小建筑间距,从而增大洋房密度及洋房比例,增加单平米销售价格,但牺牲全天日照时长。

此项目降低洋房建筑层高,洋房层高常规层高在2.9-3m,此项目仅为2.8m,增加洋房密度及洋房比例,但牺牲净高品质。

此项目高层与洋房间距用防火墙分割,间距无限小,增加小高层与洋房密度,但牺牲消防验收风险。
以上设计方案的方式所带来的经济效益有了明显的提高,但同样有着一些取舍利益与风险。丰富了我们数据分析的特殊案例收集,也同时为我们从策划阶段咨询工作积累了经验。
二、车库分析数据, 根据《天津市建设项目配建停车场(库)标准》住宅车位不再由户型决定了,改为车位/100㎡建筑面积1.2个车位。整体增加了车位数量,计算数据相对简单了,按照不考虑地上停车计算,地下车库面积比地上面积推算地下车位公摊面积。以下下分析车库面积主要影响因素。

根据数据分析影响地下车库面积的主要因素是建筑密度,建筑密度的影响换算成影响系数。可以在已知地上建筑面积和建筑密度的条件下,计算出应建地下车库面积。我们经常关注的柱网,其实对车位公摊影响相对较小。

根据数据收集人防面积一般占车库总面积的25%-35%之间,所以统计有无人防对车库整体成本影响均在10%左右。
数据的支持是项目策划咨询的基础,更需要强大的技术团队支持去提取分析数据,房友作为一个22年从事工程咨询行业的企业,拥有着设计与工程咨询行业的人才储备,为您在策划设计阶段提供服务。
